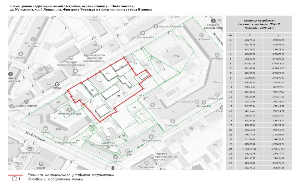
Мэрия Воронежа начала поиск инвестора для комплексной застройки участка в исторической части города, ограниченного улицами Никитинская, Куколкина, 9 Января и Фридриха Энгельса. Право заключения договора о комплексном развитии территории (КРТ) выставлено на торги с начальной ценой 23,1 млн рублей, шаг аукциона составляет около 1,16 млн рублей, размер задатка равен стартовой цене.
Площадь территории под освоение – около 7,1 тыс. кв. метров. Здесь планируется строительство многосекционных многоквартирных домов переменной этажности – от двух до семи этажей – с подземным паркингом. Участок относится к исторической части города, поэтому застройщик обязан вписать новый комплекс в существующий архитектурный облик и сохранить ряд объектов.
Торги пройдут в форме аукциона, задаток за участие принимается до 14 апреля, проведение торгов запланировано на 20 апреля.













